Menos tempo gasto em levantamento cadastral, menos riscos envolvidos e uma precisão incomparável.

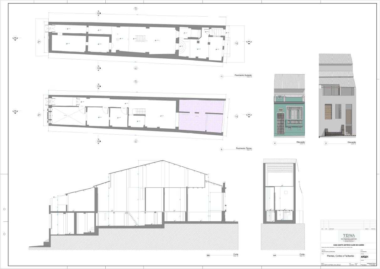
Através da tecnologia BIM, geramos modelos 3D, plantas baixas e fachadas com rapidez e alto nível de precisão. Para isso, utilizamos equipamentos de laser scanner terrestre da Leica Geosystems, referência mundial em qualidade e confiabilidade.
O escaneamento a laser possibilita a execução de as-builts, regularização de imóveis, levantamentos cadastrais de grandes edificações e registros históricos, oferecendo mais eficiência, precisão e segurança para seus projetos.
Soluções de captura da realidade e modelagem BIM para projetos que exigem qualidade, segurança nas decisões e documentação confiável
01.
Saúde e Hospitais
Levantamentos com rapidez e precisão, reduzindo riscos operacionais e apoiando projetos com mínima interferência na rotina assistencial.
02.
Patrimônio Histórico
Mapeamento técnico detalhado para preservação, restauro e documentação de edificações históricas.
03.
Órgãos Públicos
Levantamentos arquitetônicos com clareza documental e suporte técnico para projeto e gestão.
Experiência aplicada em campo
Somos uma empresa de tecnologia especializada em atender arquitetos e engenheiros, oferecendo soluções avançadas em nuvem de pontos, modelagem BIM e tour virtual, com foco em precisão, agilidade e confiabilidade para projetos de qualquer escala.

Desde 2019
Atuando com soluções de captura da realidade, documentação técnica e modelagem BIM.
Clientes e parceiros que já confiaram na Teiva para levantamento cadastral, nuvem de pontos e modelagem BIM.
Mais do que capturar dados, entregamos informação técnica clara, organizada e pronta para uso no fluxo de projeto.
Agilidade com método
Processos bem definidos e tecnologia de alta precisão para levantamentos eficientes, sem perder consistência técnica.
Precisão que reduz incertezas
Capturamos a realidade com alto nível de detalhe para apoiar decisões, reduzir retrabalho e aumentar a confiabilidade do projeto.
Entendimento do fluxo de projeto
Somos uma empresa criada por arquitetos, com entregas pensadas para integrar-se naturalmente ao processo de quem projeta.
A TEIVA é liderada por arquitetos com ampla experiência em projetos, obras, BIM e gestão técnica, garantindo domínio do processo, leitura crítica da realidade construída e alinhamento com as necessidades do cliente.
Perguntas frequentes
O que é um levantamento por laser scanner?
É uma tecnologia de captura da realidade que registra, com alta precisão, a geometria tridimensional de ambientes, edificações e estruturas.
O que é uma nuvem de pontos?
É o conjunto de milhões de pontos tridimensionais capturados no levantamento, formando uma base digital precisa para análise, medição e modelagem.
Como a nuvem de pontos é gerada?
Após a captura em campo, os dados passam por processamento, registro e organização em software especializado.
O que é modelagem BIM?
É o processo de criação de um modelo digital inteligente da edificação, com geometria e informações técnicas organizadas.
Como a nuvem de pontos é usada na modelagem BIM?
Ela funciona como base de referência para reproduzir com fidelidade a geometria existente.
Quais são as vantagens do laser scanner e da modelagem BIM?
Mais precisão, melhor visualização, menos retrabalho, registro histórico (permite revisitar o levantamento quantas vezes forem necessárias) e decisões técnicas mais seguras.
Quais são os benefícios de combinar laser scanner e BIM?
A integração melhora a precisão das informações, facilita a compatibilização e reduz erros em projeto e obra.
Quais setores podem se beneficiar dessas soluções?
Arquitetura, engenharia, construção civil, patrimônio histórico, hospitais, varejo, hotelaria, indústria, edifícios comerciais, órgãos públicos e retrofit.
Posso contratar apenas a nuvem de pontos?
Sim. A Teiva pode fornecer a nuvem de pontos para que sua equipe desenvolva a modelagem internamente.
Posso contratar apenas a modelagem BIM se eu já tiver uma nuvem de pontos?
Sim. Avaliamos a qualidade do material e a viabilidade da modelagem conforme o nível de detalhamento desejado.

Se você precisa de uma base técnica confiável para levantamento, documentação ou modelagem BIM, fale com a Teiva.
Vamos conversar
sobre o seu projeto







































